Рулевая рейка

Особенности устройства и эксплуатации элементов подвески и ходовой части автомобилей KIA SORENTO XM (2009MY)

Re: Рулевая рейка

Сообщение syv » 26 сен 2017, 17:33

Ramb писал(а):я заказывал у токаря... брал чертежи в инете... там давно её уже нарисовали разборную правда

Нашёлся бы "токарь-комерсант", который для форумчан точил модернизированные рулевые втулки (как у DUZER) и реализовывал по сходной цене. Я за 5 кило рублей купил бы. Не дорого??? :oops:

Добавлено через 2 часа 10 минут 57 секунд:
Accent-58 писал(а):Диаметр штока рулевой рейки ровно 28 мм ?

Я микрометром мерил ровно 28.00
Аватара пользователя
syv
 
 
Сообщения: 796
Зарегистрирован: 05 июл 2011, 21:32
Откуда: Ростов на Дону
Благодарил (а): 65 раз.
Поблагодарили: 66 раз.
Имя: Юрий
Автомобиль: Sorento XM, 2.4 (174 л/с), 4WD, MT
Год выпуска: 2011
Доп. информация: Аморт - перед патрон KYB 365076, зад "Kayba"; пружины H&R+25; 255/55/18; распорка, Чип тюн; Шумка .

Re: Рулевая рейка

Сообщение Accent-58 » 26 сен 2017, 19:51

Во спасибо. Хоть кто-то интересуется размерами. Завтра дочерчу и отдам в изготовление. Материал, думаю, лучше сталь и цинком покрыть. Латунь не совместим с материалом рулевой рейки.
ಠ_ಠ Изображениеಠ_ಠ
Аватара пользователя
Accent-58
 
 
Сообщения: 7080
Зарегистрирован: 30 апр 2008, 07:48
Откуда: Пенза
Благодарил (а): 229 раз.
Поблагодарили: 584 раз.
Имя: Александр
Автомобиль: Другая машина
Год выпуска: 2012
Доп. информация: были
SORENTO BL 2.5TD
SORENTO BL 3,3
SORENTO XM 2,4
Сейчас LCP 150

Re: Рулевая рейка

Сообщение syv » 26 сен 2017, 20:02

Accent-58 писал(а):чертежа втулки из капролона нет. Если найдешь у себя, скинь пожалуйста.

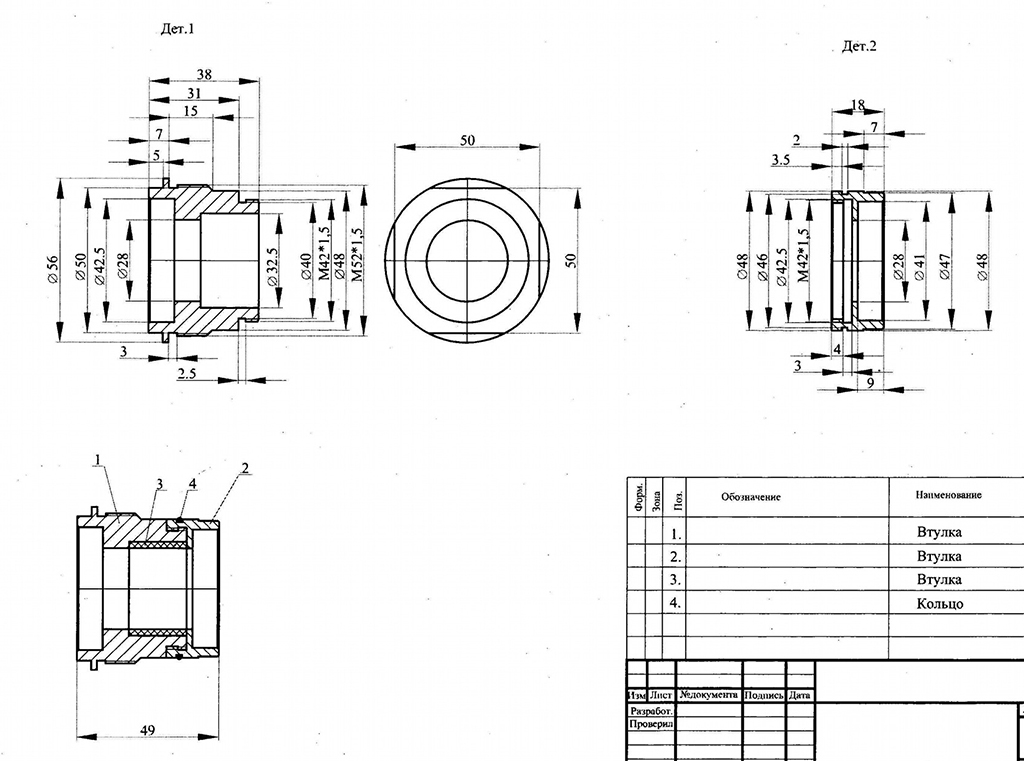
Вот чертёж, Duzer раньше выкладывал:

Добавлено через 2 минуты 5 секунд:
Accent-58 писал(а):Латунь не совместим с материалом рулевой рейки.

Латунь или бронза самое то, или нерж. Люди делали из латуни, ни каких проблем.... :)
Вложения
втулка.jpg
Разборная втулка
Аватара пользователя
syv
 
 
Сообщения: 796
Зарегистрирован: 05 июл 2011, 21:32
Откуда: Ростов на Дону
Благодарил (а): 65 раз.
Поблагодарили: 66 раз.
Имя: Юрий
Автомобиль: Sorento XM, 2.4 (174 л/с), 4WD, MT
Год выпуска: 2011
Доп. информация: Аморт - перед патрон KYB 365076, зад "Kayba"; пружины H&R+25; 255/55/18; распорка, Чип тюн; Шумка .

Re: Рулевая рейка

Сообщение Accent-58 » 26 сен 2017, 20:10

Этот чертеж не правильный. Не советую напяливать втулку с внутренним диаметром 28 мм, на вал рейки с таким же диаметром

Добавлено через 1 минуту 45 секунд:
думаю латунь поискать, нержавейку драть дело не благодарное, меня на работе прибьют
ಠ_ಠ Изображениеಠ_ಠ
Аватара пользователя
Accent-58
 
 
Сообщения: 7080
Зарегистрирован: 30 апр 2008, 07:48
Откуда: Пенза
Благодарил (а): 229 раз.
Поблагодарили: 584 раз.
Имя: Александр
Автомобиль: Другая машина
Год выпуска: 2012
Доп. информация: были
SORENTO BL 2.5TD
SORENTO BL 3,3
SORENTO XM 2,4
Сейчас LCP 150

Re: Рулевая рейка

Сообщение Ramb » 26 сен 2017, 20:12

syv
во я по этому себе делал из алюминьки... проблема была с сальником... 28 мм по моему свободно больно сидел
syv писал(а):Я за 5 кило рублей купил бы.

дорогая запчасть получается... там точить надо на хорошем станке, плюс вставка... вообщем в 500 рублесов не влазист

Добавлено через 1 минуту 36 секунд:
Accent-58
понятно дело что чертежик дорабатывал...)))
Изображение
Аватара пользователя
Ramb
 
 
Сообщения: 5332
Зарегистрирован: 23 сен 2012, 11:19
Откуда: Мытищи
Благодарил (а): 99 раз.
Поблагодарили: 438 раз.
Имя: Роман
Автомобиль: Sorento XM, 2.2TD (197 л/с), 4WD, AT, 7 мест
Год выпуска: 2011
Доп. информация: пружины H&R, аморты передние MONROE G8406(7), аморты задние KYB 341716 , заглушен EGR, вырезан сажевик и катализатор, чипован

Re: Рулевая рейка

Сообщение Accent-58 » 26 сен 2017, 20:14

а сальник из старой втулки ставил? Если алюмишку найду, из нее сделаю.
ಠ_ಠ Изображениеಠ_ಠ
Аватара пользователя
Accent-58
 
 
Сообщения: 7080
Зарегистрирован: 30 апр 2008, 07:48
Откуда: Пенза
Благодарил (а): 229 раз.
Поблагодарили: 584 раз.
Имя: Александр
Автомобиль: Другая машина
Год выпуска: 2012
Доп. информация: были
SORENTO BL 2.5TD
SORENTO BL 3,3
SORENTO XM 2,4
Сейчас LCP 150

Re: Рулевая рейка

Сообщение Ramb » 26 сен 2017, 20:15

Accent-58
не он погано вылез... ездил новый покупал... пришлось 4 купить подбирать
Изображение
Аватара пользователя
Ramb
 
 
Сообщения: 5332
Зарегистрирован: 23 сен 2012, 11:19
Откуда: Мытищи
Благодарил (а): 99 раз.
Поблагодарили: 438 раз.
Имя: Роман
Автомобиль: Sorento XM, 2.2TD (197 л/с), 4WD, AT, 7 мест
Год выпуска: 2011
Доп. информация: пружины H&R, аморты передние MONROE G8406(7), аморты задние KYB 341716 , заглушен EGR, вырезан сажевик и катализатор, чипован

Re: Рулевая рейка

Сообщение syv » 26 сен 2017, 20:18

Accent-58 писал(а):а сальник из старой втулки ставил?

Duzer писал какой сальник он ставил. Если сальник с втулки выковыривать (он сидит на клее) сальнику будет кирдык однозначно.
Аватара пользователя
syv
 
 
Сообщения: 796
Зарегистрирован: 05 июл 2011, 21:32
Откуда: Ростов на Дону
Благодарил (а): 65 раз.
Поблагодарили: 66 раз.
Имя: Юрий
Автомобиль: Sorento XM, 2.4 (174 л/с), 4WD, MT
Год выпуска: 2011
Доп. информация: Аморт - перед патрон KYB 365076, зад "Kayba"; пружины H&R+25; 255/55/18; распорка, Чип тюн; Шумка .

Re: Рулевая рейка

Сообщение Accent-58 » 26 сен 2017, 20:19

а купил сальник с направляющей или простой? Я буду пробовать свою втулку надпилить и разломить, чтобы вытащить сальник, ну или придется купить сам сальник, он около 400 руб стоит

Добавлено через 1 минуту 11 секунд:
syv
Да я читал, он от ремкомплекта сонаты ставил, а ремкомплект стоит 1200. Это не вариант. Нам нужно свой путь искать, более дешевый.
ಠ_ಠ Изображениеಠ_ಠ
Аватара пользователя
Accent-58
 
 
Сообщения: 7080
Зарегистрирован: 30 апр 2008, 07:48
Откуда: Пенза
Благодарил (а): 229 раз.
Поблагодарили: 584 раз.
Имя: Александр
Автомобиль: Другая машина
Год выпуска: 2012
Доп. информация: были
SORENTO BL 2.5TD
SORENTO BL 3,3
SORENTO XM 2,4
Сейчас LCP 150

Re: Рулевая рейка

Сообщение syv » 26 сен 2017, 21:23

Accent-58 писал(а):Да я читал, он от ремкомплекта сонаты ставил, а ремкомплект стоит 1200. Это не вариант. Нам нужно свой путь искать, более дешевый.

Щас буду искать,где видел......Вот вариант http://rti-baltika.ru/shop/salniki-rule ... i-f-00869/ В инете цена до 500 р. Под наружный размер сальника точить втулку....
Или наш автопром 42*28*7 -- сальник коленвала передний ВАЗ 2108 . Цена от 100р.
Аватара пользователя
syv
 
 
Сообщения: 796
Зарегистрирован: 05 июл 2011, 21:32
Откуда: Ростов на Дону
Благодарил (а): 65 раз.
Поблагодарили: 66 раз.
Имя: Юрий
Автомобиль: Sorento XM, 2.4 (174 л/с), 4WD, MT
Год выпуска: 2011
Доп. информация: Аморт - перед патрон KYB 365076, зад "Kayba"; пружины H&R+25; 255/55/18; распорка, Чип тюн; Шумка .

Re: Рулевая рейка

Сообщение Accent-58 » 27 сен 2017, 04:47

CORTECO 01031617B вот пока нашел самый дешевый (не пойму только он с направляющей или нет). В инете только такое фото. Заказал, посмотрю, что за сальник.
Изображение


Твой у меня в автодоке 700 показывает. А сальник коленвала не пойдет. Нужен сальник с направляющей. На сколько я понял, он выдерживает давление до 10 атм, а обычный сальник до 1 атм.
ಠ_ಠ Изображениеಠ_ಠ
Аватара пользователя
Accent-58
 
 
Сообщения: 7080
Зарегистрирован: 30 апр 2008, 07:48
Откуда: Пенза
Благодарил (а): 229 раз.
Поблагодарили: 584 раз.
Имя: Александр
Автомобиль: Другая машина
Год выпуска: 2012
Доп. информация: были
SORENTO BL 2.5TD
SORENTO BL 3,3
SORENTO XM 2,4
Сейчас LCP 150

Re: Рулевая рейка

Сообщение syv » 27 сен 2017, 22:13

Вопрос к знатокам. При изготовлении втулки, можно ли не выполнять проточку (на рис.ВТ2. выделено красным), тем самым изготовив и установив капролоновую втулку большей длины (Рис.ВТ1.)

Добавлено через 5 минут 51 секунду:
Вложения
ВТ2.jpg
Без проточки с удленённой капролоновой втулкой
ВТ2.jpg (43.53 КБ) Просмотров: 6084
ВТ1.jpg
Втулка с проточкой
ВТ1.jpg (47.26 КБ) Просмотров: 6084
Аватара пользователя
syv
 
 
Сообщения: 796
Зарегистрирован: 05 июл 2011, 21:32
Откуда: Ростов на Дону
Благодарил (а): 65 раз.
Поблагодарили: 66 раз.
Имя: Юрий
Автомобиль: Sorento XM, 2.4 (174 л/с), 4WD, MT
Год выпуска: 2011
Доп. информация: Аморт - перед патрон KYB 365076, зад "Kayba"; пружины H&R+25; 255/55/18; распорка, Чип тюн; Шумка .

Re: Рулевая рейка

Сообщение Accent-58 » 28 сен 2017, 05:04

я думаю можно. Нужно только посмотреть, а то может в эту проточку уже рулевая тяга приезжает. Можно эту проточку не трогать, а втулку увеличить до 25 мм. Стенка в металле толстая.
ಠ_ಠ Изображениеಠ_ಠ
Аватара пользователя
Accent-58
 
 
Сообщения: 7080
Зарегистрирован: 30 апр 2008, 07:48
Откуда: Пенза
Благодарил (а): 229 раз.
Поблагодарили: 584 раз.
Имя: Александр
Автомобиль: Другая машина
Год выпуска: 2012
Доп. информация: были
SORENTO BL 2.5TD
SORENTO BL 3,3
SORENTO XM 2,4
Сейчас LCP 150

Re: Рулевая рейка

Сообщение syv » 28 сен 2017, 09:56

Accent-58 писал(а):а то может в эту проточку уже рулевая тяга приезжает.

Вот бы точно знать.....

Добавлено через 4 минуты 42 секунды:
Accent-58 писал(а):Твой у меня в автодоке 700 показывает.

Вот оригинал в автодоке:
HYUNDAI-KIA 0K99332184A – Сальник
Аватара пользователя
syv
 
 
Сообщения: 796
Зарегистрирован: 05 июл 2011, 21:32
Откуда: Ростов на Дону
Благодарил (а): 65 раз.
Поблагодарили: 66 раз.
Имя: Юрий
Автомобиль: Sorento XM, 2.4 (174 л/с), 4WD, MT
Год выпуска: 2011
Доп. информация: Аморт - перед патрон KYB 365076, зад "Kayba"; пружины H&R+25; 255/55/18; распорка, Чип тюн; Шумка .

Re: Рулевая рейка

Сообщение Ramb » 28 сен 2017, 12:05

syv

выборка нужна туда заходит шарнир рулевой тяги
Изображение
Аватара пользователя
Ramb
 
 
Сообщения: 5332
Зарегистрирован: 23 сен 2012, 11:19
Откуда: Мытищи
Благодарил (а): 99 раз.
Поблагодарили: 438 раз.
Имя: Роман
Автомобиль: Sorento XM, 2.2TD (197 л/с), 4WD, AT, 7 мест
Год выпуска: 2011
Доп. информация: пружины H&R, аморты передние MONROE G8406(7), аморты задние KYB 341716 , заглушен EGR, вырезан сажевик и катализатор, чипован

Пред.След.

Вернуться в Подвеска и ходовая (XM)

Кто сейчас на конференции

Сейчас этот форум просматривают: нет зарегистрированных пользователей и гости: 1