bog13bog писал(а):Я так понимаю, фундамент свайный будет.
Я бы даже сказал есть! Водоотвод будет в септик/колодец недалеко от дома. Разумеется, всё придётся утеплять.
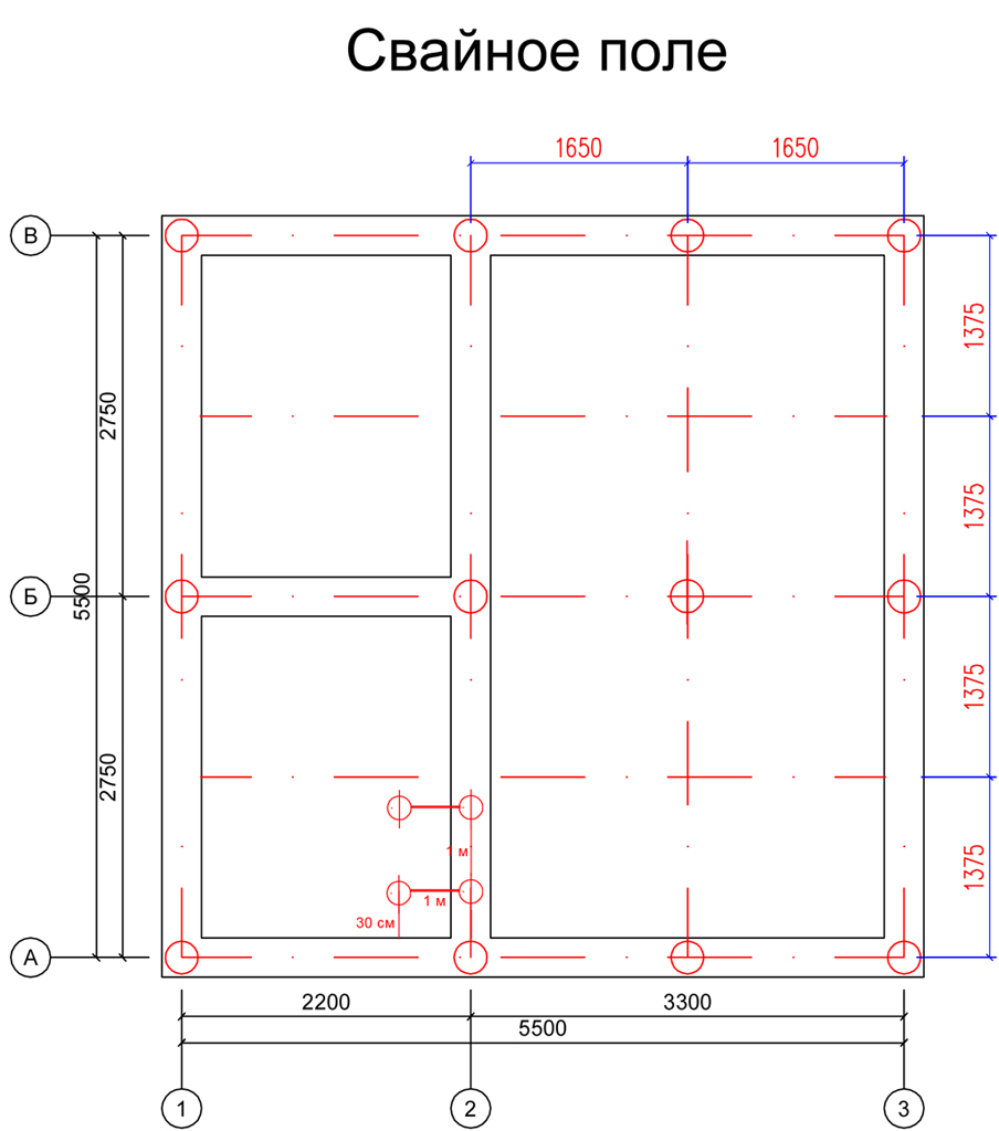
bog13bog писал(а):На схеме печку не нашел, она где планируется?
Топочная будет из "гостиной". Там под печь специально усиление фундамента делал. Но работяги сказали что если у тебя печь будет до 500 кг - нафиг не нужно
усиление, и обычные лаги вывезут... Вот думаю теперь, заливать площадку и ну его нафиг...
bog13bog писал(а):Единственный минус у оцилиндрованного бревна, у него самый хороший и прочный слой древсины сточен, я бы посовтовал все же пропитать бревно, что бы и влагу не впитывало не темнело, причем желательно чем быстрее, тем лучше.
Насчёт хорошего прочного слоя, который снят у ОЦБ - возможно. Но на мой взгляд с нынешним кол-вом разнообразных пропиток этим можно легко пренебречь!
Обработаю антисептиком как только температура поднимется выше 10-15 С. И торцы закрашу, чтобы трескались чуть поменьше.
И сейчас всё чаще и чаще строят из древесины естественной влажности. Но если сруб готовят заранее прямо под тебя - то да, можно попробовать неверное и отстоявшийся замутить, только долго ждать придётся...
bog13bog писал(а):А внутрянку как отделывать будешь?
Честно говоря кроме парилки ничего отделывать не планирую, смысл бревна иначе теряется.
bog13bog писал(а):Я тоже подбираю вариант баня - дом, мне много не надо.
С балконами и ломаной крышей домик начинает совсем по другому смотреться, имхо.
Другое дело - это всё влечёт за собой дополнительные траты. Т.к. терраску и балкончик по-любому нужно будет застеклять. Сама стропилка дороже, нежели у обычной двухскатной и пр. пр...
В любом случае удачи в этом не лёгком деле, готовь нервы, деньги и... что-нибудь ещё, можно бухло
bog13bog писал(а):Удачи.
Спасибо.



Всё будешь разбирать 
нормальный проветриваемый пол может 50 лет прослужить, если под парилкой нормально все с дренажом а в самой парилке - с вентиляцией