Строю баньку)

Делимся опытом, описываем сделанное своими руками. Автомобильное рукоделие размещается в других разделах!

Re: Строю баньку)

Сообщение Евген81 » 22 май 2013, 13:31

и я планировал на прошлой даче баньку для начала,получилось вот как-
Изображение
гаражик тоже хотел на две машинешки,ну сверху пару комнаток сделать,в итоге парочки комнат показалось мало,пришлось расширять вместе с ними и гаражик,вот что получилось-
Изображение

так что проектируй-не проектируй,все равно потом переделывать захочется,ибо нет предела совершенству.
Аватара пользователя
Евген81
 
Модератор
 
Сообщения: 43694
Зарегистрирован: 20 сен 2007, 22:09
Откуда: г. Балашиха
Благодарил (а): 84 раз.
Поблагодарили: 335 раз.
Имя: Евгений.
Автомобиль: Другая машина
Год выпуска: 2008
Доп. информация: Мерседес G55AMG
BMW 6 series 650i f12
BMW 6 f16
Пежо Боксер

Re: Строю баньку)

Сообщение Kucher » 22 май 2013, 13:32

Лесница должна быть пологой, чтобы можно было ходить спокойно с грудным ребенком. Я тут недавно папой стал просто :D Но размер комнаты отдыха 2,6 на 2,6 будет и ради экономии пространства хотелось бы сделать лестницу занимающущую наименьшее пространство.
Изображение
Аватара пользователя
Kucher
 
 
Сообщения: 2423
Зарегистрирован: 28 апр 2011, 14:31
Откуда: Москва
Благодарил (а): 123 раз.
Поблагодарили: 355 раз.
Имя: Алексей
Автомобиль: Sorento BL, 2.5TD (170 л/с), Part-Time, AT
Год выпуска: 2007

Re: Строю баньку)

Сообщение Евген81 » 22 май 2013, 13:35

Kucher писал(а):сделать лестницу занимающущую наименьшее пространство.

ну не бывает так-чтобы места мало и удобно-выбирай что-то одно :wink:
Вчера зашел в деревянный дом на рынке и померил размеры,отведенные для обычной лестницы-ширина метр,длины по полу 3 метра...
Аватара пользователя
Евген81
 
Модератор
 
Сообщения: 43694
Зарегистрирован: 20 сен 2007, 22:09
Откуда: г. Балашиха
Благодарил (а): 84 раз.
Поблагодарили: 335 раз.
Имя: Евгений.
Автомобиль: Другая машина
Год выпуска: 2008
Доп. информация: Мерседес G55AMG
BMW 6 series 650i f12
BMW 6 f16
Пежо Боксер

Re: Строю баньку)

Сообщение 100$ » 23 май 2013, 09:21

Kucher писал(а):для лестинцы высотоый 2,4 метра как у меня

Вот и считай.
Комфортная высота ступени 17-18 см. Ширина 27-30.
Итого 12-13 ступеней, длиной 3,9 м.
TAKE5...5/4
Аватара пользователя
100$
 
 
Сообщения: 20445
Зарегистрирован: 20 ноя 2007, 14:29
Откуда: Калуга
Благодарил (а): 834 раз.
Поблагодарили: 2387 раз.
Имя: Андрей
Автомобиль: Sorento BL, 2.5TD (170 л/с), TOD, AT
Год выпуска: 2007
Доп. информация: Первый и единственный владелец;)))

Re: Строю баньку)

Сообщение Kucher » 23 май 2013, 09:27

но это не винтовую конструкцию ты считаешь
Изображение
Аватара пользователя
Kucher
 
 
Сообщения: 2423
Зарегистрирован: 28 апр 2011, 14:31
Откуда: Москва
Благодарил (а): 123 раз.
Поблагодарили: 355 раз.
Имя: Алексей
Автомобиль: Sorento BL, 2.5TD (170 л/с), Part-Time, AT
Год выпуска: 2007

Re: Строю баньку)

Сообщение rotenflecke » 23 май 2013, 09:39

винтовая удобной и безопасной не будет никогда ;)

посмотри "выезжающие" чердачные лестницы ;) удобно не будет, зато места на съест

еще - подумай насчет лестницы внешней, иногда очень хорошо получается - зоны отдыха становятся независимыми
возмутитель и мальчиш-плохиш
Аватара пользователя
rotenflecke
 
 
Сообщения: 13272
Зарегистрирован: 16 янв 2009, 11:11
Откуда: Москва-центр
Благодарил (а): 2 раз.
Поблагодарили: 366 раз.
Имя: Артемий
Автомобиль: Другая машина
Год выпуска: 2017
Доп. информация: Santa 2.2 high-tech, были - Santa Fe 2.2 Dynamic 2014, Sorento 2.4 2010, Sorento 2,5D 2002

Re: Строю баньку)

Сообщение Евген81 » 23 май 2013, 09:43

rotenflecke писал(а):винтовая удобной и безопасной не будет никогда

посмотри "выезжающие" чердачные лестницы

первый пункт поддержу,а второй нафиг))
Темыч,ты когда-нибудь на эти выезжающие вылазил? У меня на работе такая на чердак,для дома нахрен...
Аватара пользователя
Евген81
 
Модератор
 
Сообщения: 43694
Зарегистрирован: 20 сен 2007, 22:09
Откуда: г. Балашиха
Благодарил (а): 84 раз.
Поблагодарили: 335 раз.
Имя: Евгений.
Автомобиль: Другая машина
Год выпуска: 2008
Доп. информация: Мерседес G55AMG
BMW 6 series 650i f12
BMW 6 f16
Пежо Боксер

Re: Строю баньку)

Сообщение rotenflecke » 23 май 2013, 09:48

жень, если наверху - 9м комната и там только спать - вполне себе решение

с детьми по ней не попрыгаешь - это да

мой самый любимый проект бани - с лестницей снаружи ;)
Вложения
p1.gif
Последний раз редактировалось rotenflecke 23 май 2013, 09:50, всего редактировалось 1 раз.
возмутитель и мальчиш-плохиш
Аватара пользователя
rotenflecke
 
 
Сообщения: 13272
Зарегистрирован: 16 янв 2009, 11:11
Откуда: Москва-центр
Благодарил (а): 2 раз.
Поблагодарили: 366 раз.
Имя: Артемий
Автомобиль: Другая машина
Год выпуска: 2017
Доп. информация: Santa 2.2 high-tech, были - Santa Fe 2.2 Dynamic 2014, Sorento 2.4 2010, Sorento 2,5D 2002

Re: Строю баньку)

Сообщение Kucher » 23 май 2013, 09:49

А почему не будет безопасной винтовая лестница они достаточно пологи. Чердачная в топку.
Изображение
Аватара пользователя
Kucher
 
 
Сообщения: 2423
Зарегистрирован: 28 апр 2011, 14:31
Откуда: Москва
Благодарил (а): 123 раз.
Поблагодарили: 355 раз.
Имя: Алексей
Автомобиль: Sorento BL, 2.5TD (170 л/с), Part-Time, AT
Год выпуска: 2007

Re: Строю баньку)

Сообщение rotenflecke » 23 май 2013, 09:52

любая винтовая лестница безопасна только по внешнему "широкому" краю

около центра - она практически вертикальная.... взрослые часто слетают, а уж дети - вааще
возмутитель и мальчиш-плохиш
Аватара пользователя
rotenflecke
 
 
Сообщения: 13272
Зарегистрирован: 16 янв 2009, 11:11
Откуда: Москва-центр
Благодарил (а): 2 раз.
Поблагодарили: 366 раз.
Имя: Артемий
Автомобиль: Другая машина
Год выпуска: 2017
Доп. информация: Santa 2.2 high-tech, были - Santa Fe 2.2 Dynamic 2014, Sorento 2.4 2010, Sorento 2,5D 2002

Re: Строю баньку)

Сообщение 100$ » 23 май 2013, 09:53

Kucher писал(а):но это не винтовую конструкцию ты считаешь

по барабану какую. Тебе нужно расположить 4 м ступеней. А там - как хочешь, хоть прямо, хоть криво, с поворотом, винтом.

Добавлено через 55 секунд:
rotenflecke писал(а):около центра

считай вообще нет ступеней.
TAKE5...5/4
Аватара пользователя
100$
 
 
Сообщения: 20445
Зарегистрирован: 20 ноя 2007, 14:29
Откуда: Калуга
Благодарил (а): 834 раз.
Поблагодарили: 2387 раз.
Имя: Андрей
Автомобиль: Sorento BL, 2.5TD (170 л/с), TOD, AT
Год выпуска: 2007
Доп. информация: Первый и единственный владелец;)))

Re: Строю баньку)

Сообщение Евген81 » 23 май 2013, 10:22

rotenflecke писал(а):мой самый любимый проект бани - с лестницей снаружи

О,и я себе такую же баньку ставить буду -мне такой проект давно нравится,только размеры 6*6...
Аватара пользователя
Евген81
 
Модератор
 
Сообщения: 43694
Зарегистрирован: 20 сен 2007, 22:09
Откуда: г. Балашиха
Благодарил (а): 84 раз.
Поблагодарили: 335 раз.
Имя: Евгений.
Автомобиль: Другая машина
Год выпуска: 2008
Доп. информация: Мерседес G55AMG
BMW 6 series 650i f12
BMW 6 f16
Пежо Боксер

Re: Строю баньку)

Сообщение Litvin » 23 май 2013, 22:18

:idea:
Последний раз редактировалось Litvin 15 июл 2013, 22:53, всего редактировалось 1 раз.
Litvin
 
 
Сообщения: 1606
Зарегистрирован: 13 янв 2013, 16:48
Откуда: не важно. ушел я!!
Благодарил (а): 37 раз.
Поблагодарили: 15 раз.
Имя: не важно
Автомобиль: Другая машина
Год выпуска: 2016

Re: Строю баньку)

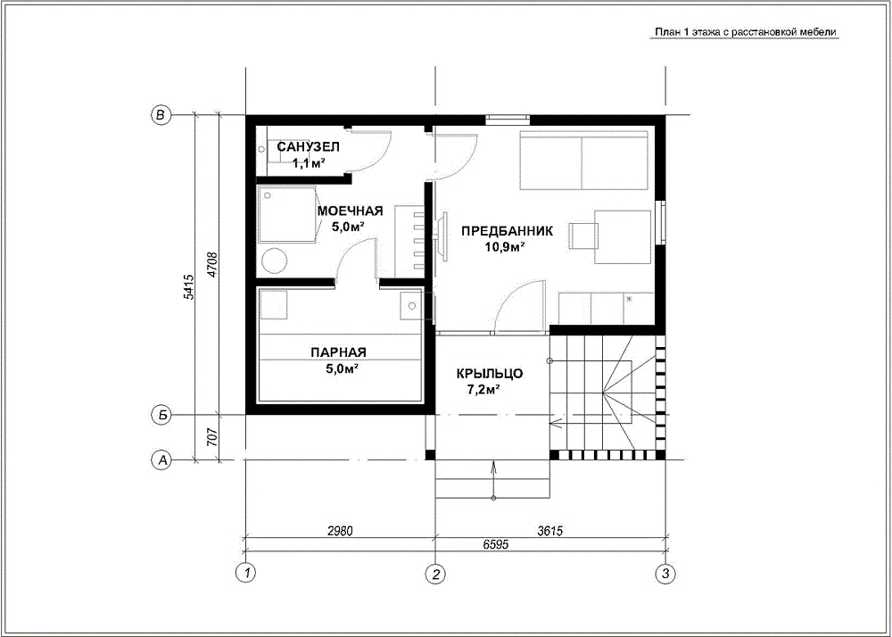
Сообщение Kucher » 24 май 2013, 09:11

очень большая баня зачем такая нужна?
Изображение
Аватара пользователя
Kucher
 
 
Сообщения: 2423
Зарегистрирован: 28 апр 2011, 14:31
Откуда: Москва
Благодарил (а): 123 раз.
Поблагодарили: 355 раз.
Имя: Алексей
Автомобиль: Sorento BL, 2.5TD (170 л/с), Part-Time, AT
Год выпуска: 2007

Re: Строю баньку)

Сообщение Serega809 » 24 май 2013, 10:52

Евген81 писал(а): я себе такую же баньку ставить буду -мне такой проект давно нравится,только размеры 6*6...

Я такую себе сейчас строю,только 5х6 плюс веранда 5х3. Итого общий размер 5х9,правда пока только сруб под руберойдом стоит,даже конопатку пока не делал.
Изображение Изображение
ИзображениеИзображениеИзображение
Аватара пользователя
Serega809
 
 
Сообщения: 14603
Зарегистрирован: 31 авг 2011, 14:46
Откуда: Москва марьино
Благодарил (а): 338 раз.
Поблагодарили: 284 раз.
Имя: Серега
Автомобиль: Sorento XM, 2.4 (174 л/с), 4WD, AT
Год выпуска: 2011
Доп. информация: Был. Побывавший в ЧИПиКО для заряда позитивом. Ох и натерпелся он от меня....
Теперь пока SPORTAGE KM и Kia seed sw1,6

Пред.След.

Вернуться в Квартира, дача, гараж

Кто сейчас на конференции

Сейчас этот форум просматривают: нет зарегистрированных пользователей и гости: 4